Pourquoi choisir Margaux-Cantenac ?
Margaux-Cantenac est une commune réputée pour son cadre de vie exceptionnel, combinant nature, tranquillité et proximité avec Bordeaux. Idéale pour ceux qui souhaitent construire une maison tout en restant connectés aux commodités de la région.
• Cadre naturel : La commune offre des paysages uniques avec des sentiers de randonnée et des pistes cyclables donnant sur l'estuaire de la Gironde.
• Vie quotidienne facilitée : Écoles, commerces de proximité, marchés hebdomadaires, services publics, tout est à portée de main. Les événements culturels et festifs rythment la vie locale, renforçant ainsi le sentiment de communauté.
• Proximité de Bordeaux : Située à seulement 25 kilomètres de Bordeaux, vous pouvez rejoindre la métropole en train (gare à Margaux), en bus ou en voiture par les axes routiers principaux.
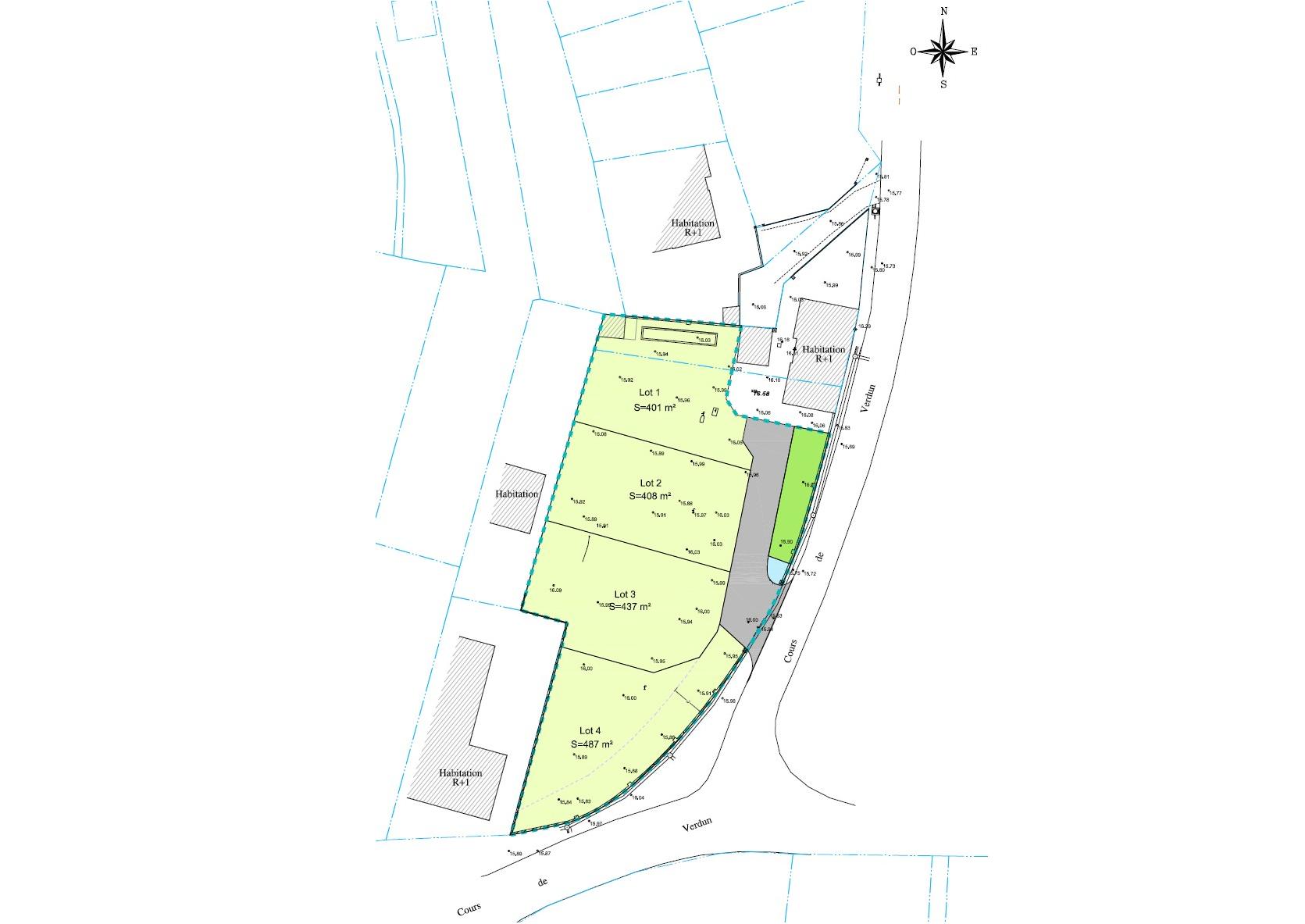
Lotissement Margaux Centre – Terrains à bâtir viabilisés en Gironde
Découvrez notre programme de 4 terrains à bâtir, entièrement viabilisés et libres de constructeur. Situés au 7 cours de Verdun, en plein cœur de Margaux-Cantenac, ces lots bénéficient d’un emplacement privilégié. Un mur en pierre remarquable borde la parcelle, vous garantissant intimité et charme, tout en profitant des avantages du centre-ville.
Caractéristiques des terrains :
• Terrains viabilisés, raccordés au tout-à-l'égout
• Accès facile : à 3 minutes à pied de la gare et en face de l'école
• Accès rapide aux axes routiers A62 et A63 (moins de 10 minutes en voiture)
• Proximité des communes voisines comme Castelnau-de-Médoc et Le Pian-Médoc
Acheter un terrain avec ATOL, c'est acheter une sécurité :
- 100% équipés et des terrains prêts à construire
- Des travaux de qualité réalisés par nos partenaires
- Créateur de lien social avec la solution ASL COMMUNITY
- Responsable et économe en ressources énergétiques
LIVRAISON PREMIER TRIMESTRE 2026 - LOT 1 ET 4 UNIQUEMENT EN RDC
Ces terrains à bâtir offrent une opportunité unique pour construire en Gironde à partir de 105 000 €.
Ne manquez pas cette opportunité ! Prenez rendez-vous dès maintenant pour visiter ces terrains et concrétiser votre projet immobilier.
À Savoir
Charges, taxes et frais
Outre le prix du terrain, les frais complémentaires à prendre en compte sont les suivants :
- 600€ de frais de dossier
- 125 € de frais d'enregistrement
- 600 € de frais de géomètre
- 800 € de frais de constitution de l’ASL
- 800€ de provision pour dégradation et réalisation des clôtures (restitués en totalité ou partie)
- Frais d’acquisition définis par le notaire
- Taxe aménagement à définir selon votre projet
- Participation à l'assainissement collectif fixée par la commune




